ID CP2772987

Teren intravilan, 500mp, Zona Răsăritului

ID CP2772987

85,000 €

Teren de 500 mp de vânzare
Sancraiu de Mures
500 mp

TLB Imobiliare vă propune spre vânzare un teren intravilan, situat în Sâncraiu de Mureș, cartier Răsăritului, o zonă rezidențială liniștită, cunoscută ca fiind printre cele mai apreciate din zonă (Peștișorul de Aur).

Terenul are o suprafață de 500 mp, cu o deschidere de 17 m (17 x 30 m) și beneficiază de acces direct de pe drum asfaltat.

Caracteristici:

• teren intravilan, construibil

• toate utilitățile la limita proprietății (apă, gaz, curent, canalizare)

• zonă liniștită, cu vedere panoramică spre natură și oraș

• vecinătăți de calitate

Avantaj major:

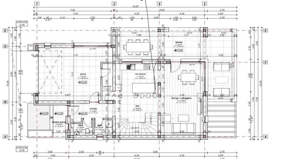
Terenul se vinde cu proiect autorizat de construcție (valoare aproximativă 9.000 euro), pentru o locuință modernă cu regim de înălțime P+2, în stil mediteranean.

Proiectul prevede:

• suprafață construită de aproximativ 380 mp

• terase generoase de 115 mp

• garaj spațios

• camere cu dressing și băi proprii

• la ultimul nivel – apartament separat cu living, cameră, dressing, baie, balcon și terasă de 49 mp

Documentație completă: CF, intabulat, toate actele la zi.

Proprietatea reprezintă o oportunitate excelentă pentru construcția unei locuințe familiale, într-o zonă în plină dezvoltare, cu acces rapid către Târgu Mureș.

Citește mai mult

  • Tip teren
    Construcții
  • Suprafață teren
    500 mp
  • Deschidere la
    Drum principal
  • Distanța față de utilități
    5.0 m
  • Clasificare
    Intravilan
  • Disponibilitate
    Imediat

Facilități

Acces auto
Apă
Canalizare
Curent
Gaz
Iluminat stradal
Mijloace de transport în comun
Parcelabil
Străzi asfaltate
Flavius Dorian - TLBImobiliare
Flavius Dorian
Broker Imobiliar

0748977342


Solicită chiar acum o vizionare
Telefon
Sună acum Solicită vizionare
Necesare:

Site-ul nu poate funcționa corect fără aceste cookie-uri. Vezi cookie-urile

Statistică:

Strângem statistici anonime despre voi, vizitatorii unici, pentru a vă îmbunătăți experiența dumneavoastră. Vezi cookie-urile

Marketing:

Pentru a ne promova mai eficient serviciile noastre, folosim cookies pentru a vă identifica și a vă oferi proprietăți și servicii personalizate. Vezi cookie-urile

Acest site folosește cookies, află detalii. Alege ce tipuri de cookies dorești să permitem: